ARS-72
The ARS-72 is a high-end window designed for projects that prioritise design, natural light and efficiency, while maintaining a high level of technical performance.
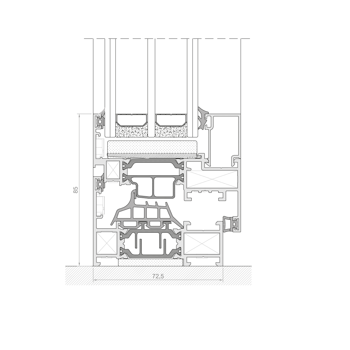
With an 85 mm sash-to-frame section, one of the slimmest on the casement window market, it maximises the glazed area and enhances natural light ingress, delivering a light and contemporary aesthetic.
Its configuration, with a 34 mm polyamide thermal break, central EPDM gasket and cellular polystyrene foams, ensures a high level of watertightness and thermal insulation, achieving a Uf value of 1.5 W/m²K and positioning it among the most efficient windows on the market.
It incorporates options such as concealed hardware, micro-ventilation and a frame with concealed drainage, improving both water performance and overall aesthetics. In addition, its compatibility with the ARS platform enables standardised fabrication, optimised stock management and reduced costs.
| Air permeability* | UNE-EN 1026:2017; UNE-EN 12207:2017 | Class 4 |
| Water tightness* | UNE-EN 1027:2017; UNE-EN 12208:2000 | Class E2250 |
| Wind load resistance* | UNE-EN 12211:2017; UNE-EN 12210:2017 | Class C5 |
| Thermal insulation Uw** | UNE-EN 10077-1:2017 | Up to 0.8 W/m2K |
| Sound insulation Rw | UNE-EN ISO 10140-2:2011 | 43 dB (0; -2) |
* Specifications of 2-sashes window of 1230×1480 mm
** Specifications of a 1-sash balcony window of 1100×2200 mm
Maximum recommended dimensions (hinged): 1500 × 3000 mm/sash
Maximum recommended dimensions (tilt-and-turn): 1400 × 2600 mm/sash
Maximum recommended weight: 180 kg/sash
Maximum glazing: 68 mm
Polyamide: 34 mm
Euro groove hardware
Optional concealed hardware and micro-ventilation
Frame with concealed drainage option
Central gasket in EPDM foam and cellular polystyrene foams
Safety wedge to improve load distribution on the hardware
Full compatibility with the ARS platform for standardised fabrication

Design
The ARS-72 features an 85 mm visible section that maximises the glazed area and accommodates glazing up to 68 mm, promoting optimal natural light ingress and a light, contemporary aesthetic.
Features
Its structure incorporates a 34 mm polyamide thermal break, a central EPDM gasket and cellular polystyrene foams, ensuring optimal thermal insulation and watertightness. The safety wedge enables correct load transfer to the hardware, enhancing the durability and reliability of the system.
Performance
The ARS-72 stands out for its high technical performance, with a Uf value of 1.5 W/m²K and Uw values as low as 0.8 W/m²K depending on the configuration, ensuring excellent energy efficiency. Its acoustic insulation of 43 dB and AEV classification Class 4 / E2250 / C5 guarantee reliable performance even under demanding conditions.
Options
The system incorporates options such as concealed hardware, micro-ventilation and a frame with concealed drainage, allowing the window to be adapted to different technical and aesthetic requirements without compromising its functionality.
Register in our digital space Exlabesa 360 to have TechDocs at your disposal: a complete documentary library with all the technical information about Exlabesa Architecture’s aluminium systems.
Access Exlabesa 360 and enjoy exclusive content and functionalities:
- Catalogues, tests, reports, sections, DAP, BIM objects…
- Thermal and acoustic transmittance calculations.
- Up to date information

